fbpx

A-Frame 52m2.

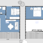
Area Area:52 м2
Size Size:6000х8000
Floors Floors:2
Rooms Bedrooms:2
Second light Second light:Yes
Bathrooms Bathrooms:1
Price from: 11 500€

Description of the house kit

Introducing the A-Frame House Kit – build it yourself!

What makes this house kit so attractive?

It’s a ready-made, insulated house shell, and its cost is minimal by today’s standards – here’s why:

  • This is a standard design developed by Prostohouse, so there’s no need to spend money on project documentation.
  • All parts of the house kit are manufactured using an efficient production process, which helps optimize costs.
  • The kit is built with simplified frame technology that can withstand all allowable loads, providing excellent thermal insulation.
  • You can assemble the house kit yourself using the provided instructions, saving money on hiring a construction crew.

Why is the project without interior finishes?
This structure can be used for various purposes, such as a utility room, residential house, or vacation home. The owner has the flexibility to choose the layout and finishes based on their specific needs.

This is the best offer on the Ukrainian market for those dreaming of a compact country house or summer cottage. All you need for assembly are standard household power tools and the assistance of just one person.

The house kit includes a complete list of necessary materials and fasteners, as well as a detailed step-by-step assembly manual.
You will need to prepare the foundation yourself, which can be screw piles, concrete pillars, or any other type of foundation. For instance, the estimated cost of installing a screw foundation with 15 piles, depending on the terrain, will range from 40,000 to 60,000 UAH.

Additional options available:

  • Lamination of window profile blocks
  • Materials for additional insulation of walls, floors, and roof
  • Kiln-dried timber for the installation of interior partitions and additional mezzanine areas

Delivery time for the house kit is 3-4 weeks from the date of order.

Currently, there are four types of house kits available:

  • Barn – 42 m²
  • A-Frame – 52 m²
  • Double Barn – 74 m²
  • Flat House – 58 m²

Choose your house kit and start living in your own home today!

Similar house kits
[ All house kits ]
NORWAY 160 м²

NORWAY 160 м²

Area
152,7 м² m2
Size
12582*7260
Rooms
3
[ Details ]

Order a consultation


    Call you back?


      Buy on credit

        Thank you!

        Your message has been sent successfully!