fbpx

NORWAY 160 м²

Площадь Площадь:160 м² м2
Размер Размер:12582*7260
Этажей Этажей:2
Комнаты Спальни:3
Второй свет Второй свет:Да
Санузлы Санузлы:2
≈ 36 000$

🏡 Домокомплект Prosto House NORWAY

Площадь: 160 м²
Этажность: 2 этажа
Тип: каркасный дом
Назначение: загородный дом для постоянного проживания или дачный коттедж


🔹 Архитектура и планировка

Проект NORWAY сочетает в себе скандинавскую сдержанность, функциональность и пространственную свободу.
Дом имеет четкие геометрические линии, панорамные окна и открытую террасу, подчеркивающую связь с природой.

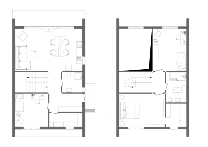
На первом этаже расположены:

  • Просторная гостиная-кухня-столовая (28,45 м²) с «вторым светом»;

  • Мастер-спальня с собственной гардеробной;

  • Санузел, техническое помещение и коридор;

  • Террасы общей площадью более 7 м² (под навесом).

На втором этаже:

  • Две уютные спальни;

  • Санузел;

  • Холл с видом на гостиную через «второй свет».


🔹 Основные характеристики

  • Общая площадь: 152,7 м²

  • Жилая площадь: 110,55 м²

  • Площадь террас: 7,4 м²

  • Конструкция: энергоэффективная каркасная система

  • Кровля: двускатная, современная крыша в скандинавском стиле

  • Материалы: деревянный каркас, утепление минеральной ватой, фасад — деревянная доска или композит под дерево


🔹 Преимущества домокомплекта

✅ Быстрая сборка
✅ Возможность монтажа в любой точке Украины
✅ Высокий уровень теплоизоляции (экономия на отоплении до 40%)
✅ Готов к внутренней отделке сразу после сборки
✅ Современная архитектура в стиле Scandinavian Eco Loft


🔹 Идеальный выбор для:

  • семей с детьми, ищущих комфорт за городом;

  • застройщиков, ценящих эффективность и стиль;

  • туристических комплексов и кемпингов премиум-класса.

Хотите лично посетить наши площадки?
Увидеть построенные нами дома
Оставьте свои контакты

Мы свяжемся с вами и организуем просмотр в удобное для вас время.


    Заказать консультацию


      Перезвонить вам?


        Купить в кредит

          Спасибо!

          Ваше сообщение успешно отправлено!